Il terreno che diventa casa
A Ponte Capriasca, a pochi minuti da Lugano.
Un progetto già approvato ti apre le porte a una villa immersa nella natura, da personalizzare secondo i tuoi desideri.
Richiedi informazioniIl terreno che diventa casa
A Ponte Capriasca, a pochi minuti da Lugano.
Un progetto già approvato ti apre le porte a una villa immersa nella natura, da personalizzare secondo i tuoi desideri.
Richiedi informazioniVivere tra natura e città
Ponte Capriasca è un piccolo comune che custodisce il fascino autentico della vita collinare ticinese. Una cornice verde, baciata dal sole, dove il silenzio e la riservatezza sono garantiti, senza rinunciare ai servizi di qualità che rendono la quotidianità semplice e piacevole.
La posizione è strategica: in meno di mezz'ora puoi raggiungere Lugano, il cuore pulsante del Canton Ticino, con le sue opportunità culturali, lavorative e sociali.
 
                    Un'opportunità concreta, una tela bianca
[Progetto approvato e Personalizzabile]
Il terreno si trova in una zona residenziale collinare, soleggiata e già urbanizzata. È corredato da domanda di costruzione approvata, un vantaggio che elimina tempi e incertezze burocratiche.
Questa approvazione ti dà un doppio beneficio:
- puoi costruire subito la villa prevista,
- oppure modificare, adattare o ripensare il progetto secondo le tue esigenze.
È una base sicura e già pronta, ma con la libertà creativa di immaginare la tua casa ideale.
 
                    Una villa moderna già disegnata, pronta a trasformarsi
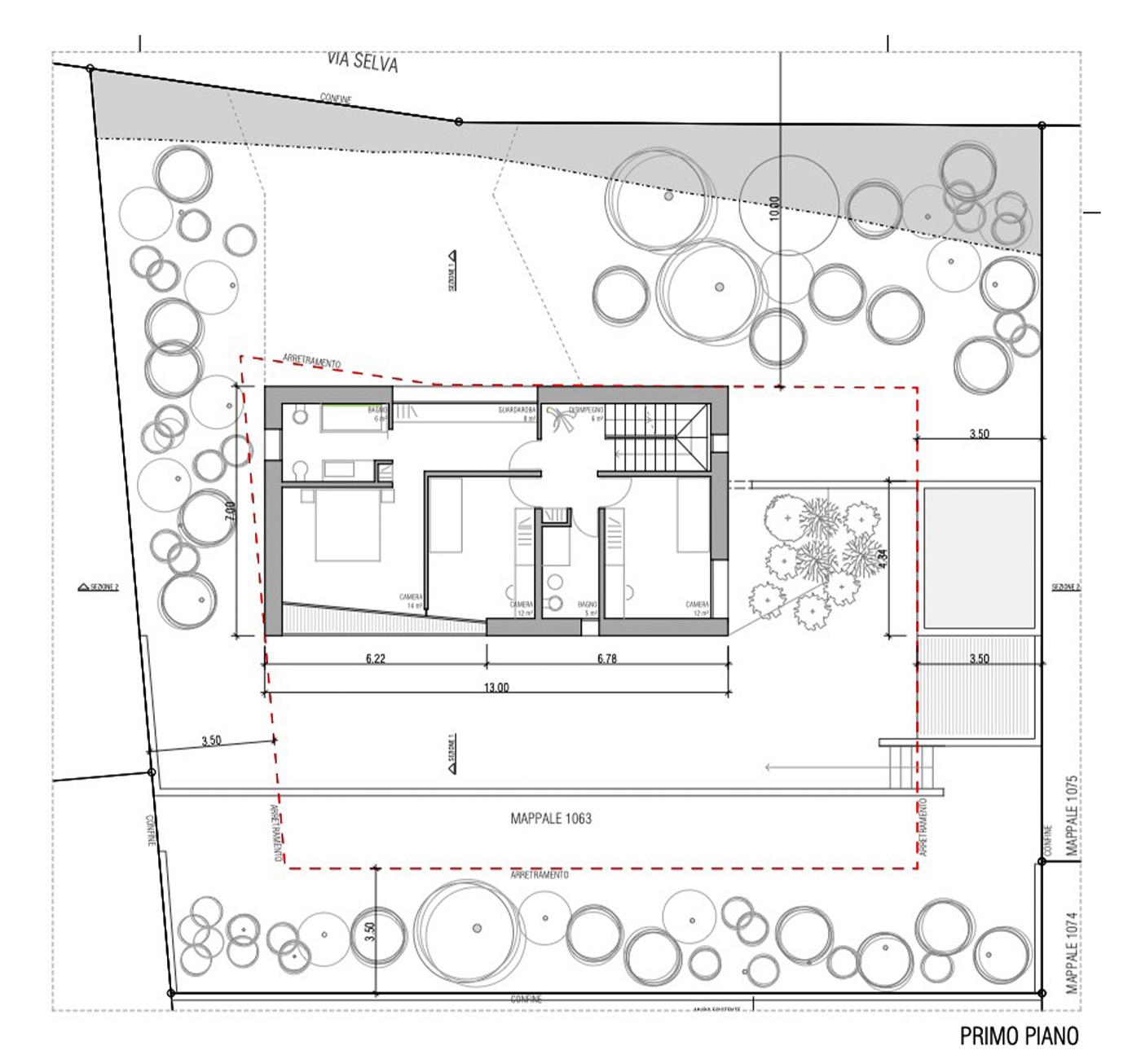
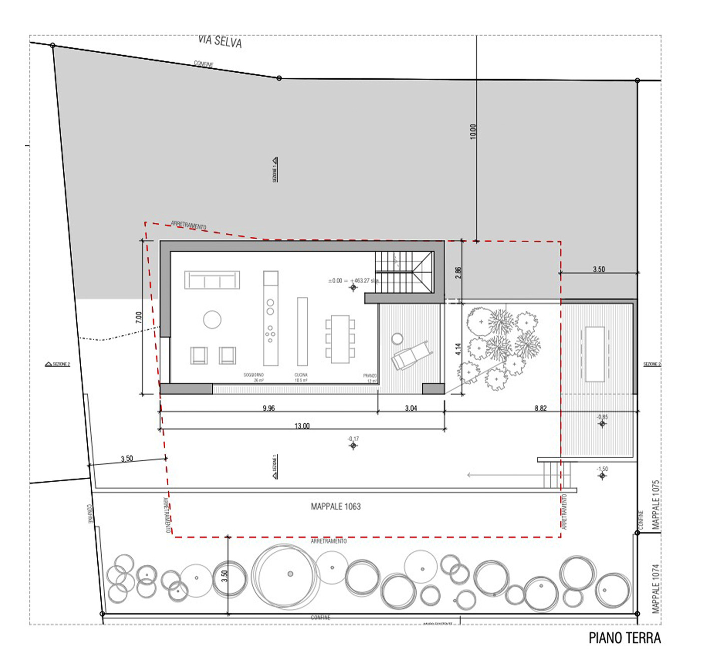
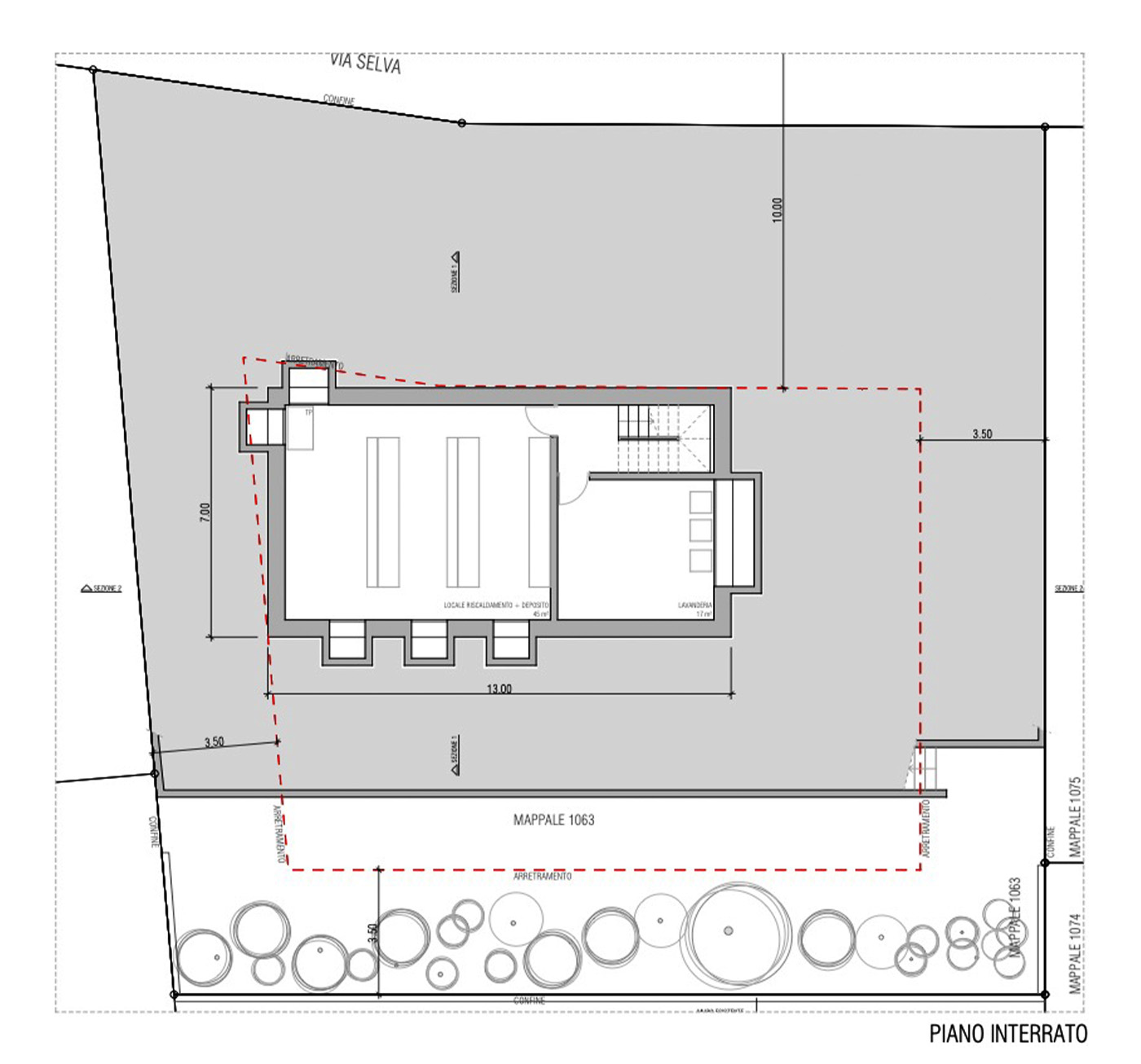
Il progetto approvato prevede una villa monofamiliare su quattro livelli.
Caratteristiche principali:
- Superficie abitabile: 253 mq
- Locali: 5,5 + Lavanderia e Cantina
- Bagni: 2
- Giardino: 540 mq
- Portici: 13 mq
- Posti auto: 2 coperti + 2 esterni
Un progetto moderno e ben strutturato, che può però evolvere e trasformarsi in base ai tuoi sogni.
Richiedi informazioniScopri gli spazi piano per piano
I piani permettono di visualizzare chiaramente la distribuzione degli ambienti. Ogni livello è stato studiato per coniugare funzionalità e comfort, lasciando ampio margine di personalizzazione.
 
        Un luogo dove il tempo scorre più lentamente
Immagina di tornare a casa ogni sera in un luogo che regala silenzio e serenità, lontano dal ritmo frenetico della città. Ponte Capriasca offre un equilibrio raro: è immersa nel verde, con una qualità della vita che difficilmente si trova altrove, e al tempo stesso vicinissima a Lugano.
Tranquillità
Luminosità
naturale
                                Servizi a portata
di mano
                                Collegamenti rapidi
con Lugano
                                Sicurezza oggi, libertà domani
Acquistare questo terreno significa investire in un bene certo e tangibile, con il valore aggiunto di un progetto già approvato.
 
                            Terreno con
licenza edilizia
                                CHF 810'000
 
                            Costruzione villa
(standard medio)
                                a partire da
CHF 1'250'000
Lasciati ispirare
Render interni ed esterni raccontano la villa e il suo contesto, per aiutarti a immaginare la tua nuova casa.
Chi siamo
Dal 2015 lo Studio Luppi Negri Senzani realizza progetti esclusivi che uniscono estetica, funzionalità e personalizzazione.
Ogni progetto nasce da un dialogo autentico con il cliente e si traduce in spazi esclusivi, eleganti e funzionali.
                                Lavoriamo tra Lugano, il Ticino e Milano, trasformando i desideri in architettura senza tempo.
 
                    Dicono di noi
 
                                    La collaborazione avuta con la DL Aleksej Negri Senzani é stata molto professionale sotto tutti i punti di vista.
Simone Arturo
/ 2024.02.27 
                                    Progetto Bassengo, palazzina di 3 piani 2 appartamenti al 1.p, 4 app pt e garage con 10 posti auto e cantine, locali tecnici. I preventivi e i tempi di esecuzione sono stati rispetati grazie al rigoroso controllo del cantiere sia durante la costruzione grezza come anche durante le finiture. Siamo molto contenti del risultato finale. Ringraziamo per la grande disponibilità dimostrataci. Moccetti
Stefano Moccetti
/ 2024.02.26 
                                    Un giovane team molto innovativo e competente. Abbiamo apprezzato la collaborazione e la comprensione anche verso gli artigiani. Dopo il lavoro interessante svolto e portato a termine con successo nei termini richiesti a Ponte Tresa, speriamo di trovarvi presto in altri cantieri.
Stefan Hintermann
/ 2024.02.26 
                                    Abbiamo ristrutturato parzialmente la nostra casa con la collaborazione dello studio Luppi-Negri Senzani Sagl e siamo state soddisfatte dalla loro competenza, professionalità e disponibilità. Malgrado l'interruzione dei lavori a causa della pandemia, lo studio ha gestito la situazione in modo ottimale. Joller Zita & Irene
Irene Joller
/ 2024.02.24Trasforma un terreno in un sogno concreto
Questo terreno non è solo un'opportunità immobiliare: è la possibilità di scrivere una nuova storia, la tua. Compila il modulo e ti ricontatteremo al più presto.
Questo terreno è la possibilità di scrivere una nuova storia, la tua. Compila il modulo e ti ricontatteremo al più presto
FAQ
- 
                        Qual è il costo del progetto della villa?Il prezzo del terreno è stabilito. Quello della villa invece parte da una base definita, ma può cambiare — in più o in meno — in base alle personalizzazioni scelte, sempre con preventivi chiari e trasparenti. 
- 
                        Posso modificare spazi e finiture?Sì, puoi personalizzare distribuzione degli ambienti, materiali e dettagli per creare la villa su misura per te. 
- 
                        Posso prenotare una visita in loco?Sì, è possibile organizzare una visita all’area per vedere da vicino il terreno e la posizione della villa. Per richiederla ti basta compilare il form con i tuoi dati, e ti ricontatteremo per concordare insieme il momento più adatto. 
- 
                        Posso venire in Studio a vedere la documentazione cartacea del progetto?Sì, assolutamente. Saremo lieti di accoglierti nel nostro Studio, mostrarti il progetto nei dettagli e rispondere a tutte le tue domande. Ti invitiamo a compilare il form per fissare un appuntamento. 
- 
                        Quali garanzie offre lo Studio?Ogni fase è coperta da contratti chiari e legali. Ti seguiamo dal progetto preliminare fino alla consegna. 
- 
                        Sarete disponibili anche dopo il progetto?Sì, restiamo a disposizione per rispondere a dubbi e accompagnarti anche dopo la consegna. 
 
                         
                                        
                                     
                                        
                                     
                                        
                                     
                                        
                                     
                                                
                                             
                                                
                                             
                                                
                                             
                                                
                                             
                            
                         
                            
                         
                            
                        